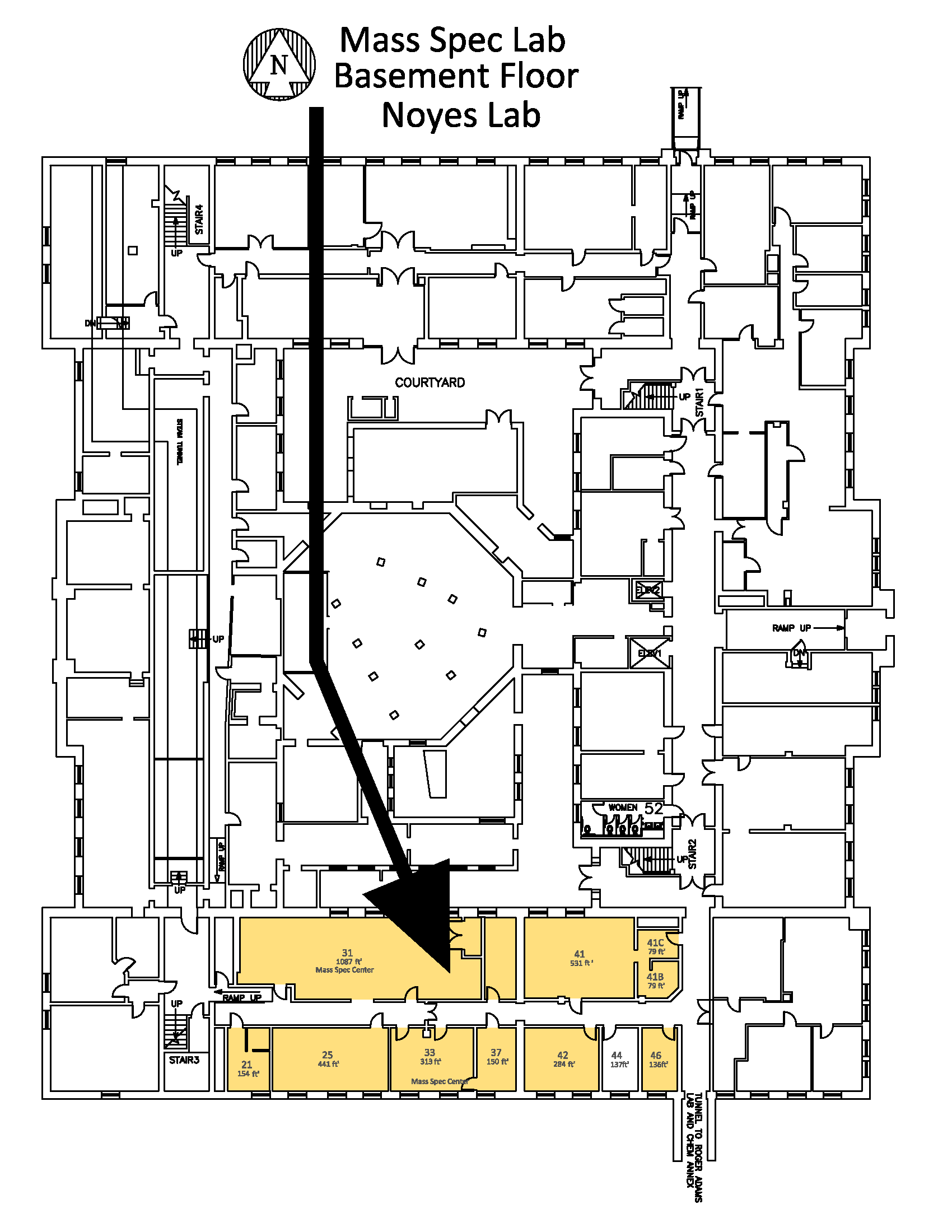
The Mass Spec facility is located in Noyes Lab with labs in rooms 41 (primary room), 21, 25, 42, and 46 Noyes.
Offices are in rooms 35 and 37 Noyes Lab.
Lab Hours: 24/7 access by key
Staff Available: Monday - Friday, 8 am to 4:45 pm
The Mass Spec facility is located in Noyes Lab with labs in rooms 41 (primary room), 21, 25, 42, and 46 Noyes.
Offices are in rooms 35 and 37 Noyes Lab.
Lab Hours: 24/7 access by key
Staff Available: Monday - Friday, 8 am to 4:45 pm
106 Noyes Lab, Box D-5, MC-712
505 S. Mathews Ave.
Urbana, IL 61801
Email: scs-webmaster@illinois.edu